Ferdinand Bolstraat 62-2
Amsterdam
28 m² living
1 bedroom
Asking price € 325.000 k.k.
Amsterdam






Asking price
€ 1.800.000 k.k.
Square meters
219 m² living
Rooms
3 Rooms / 2 Bedrooms
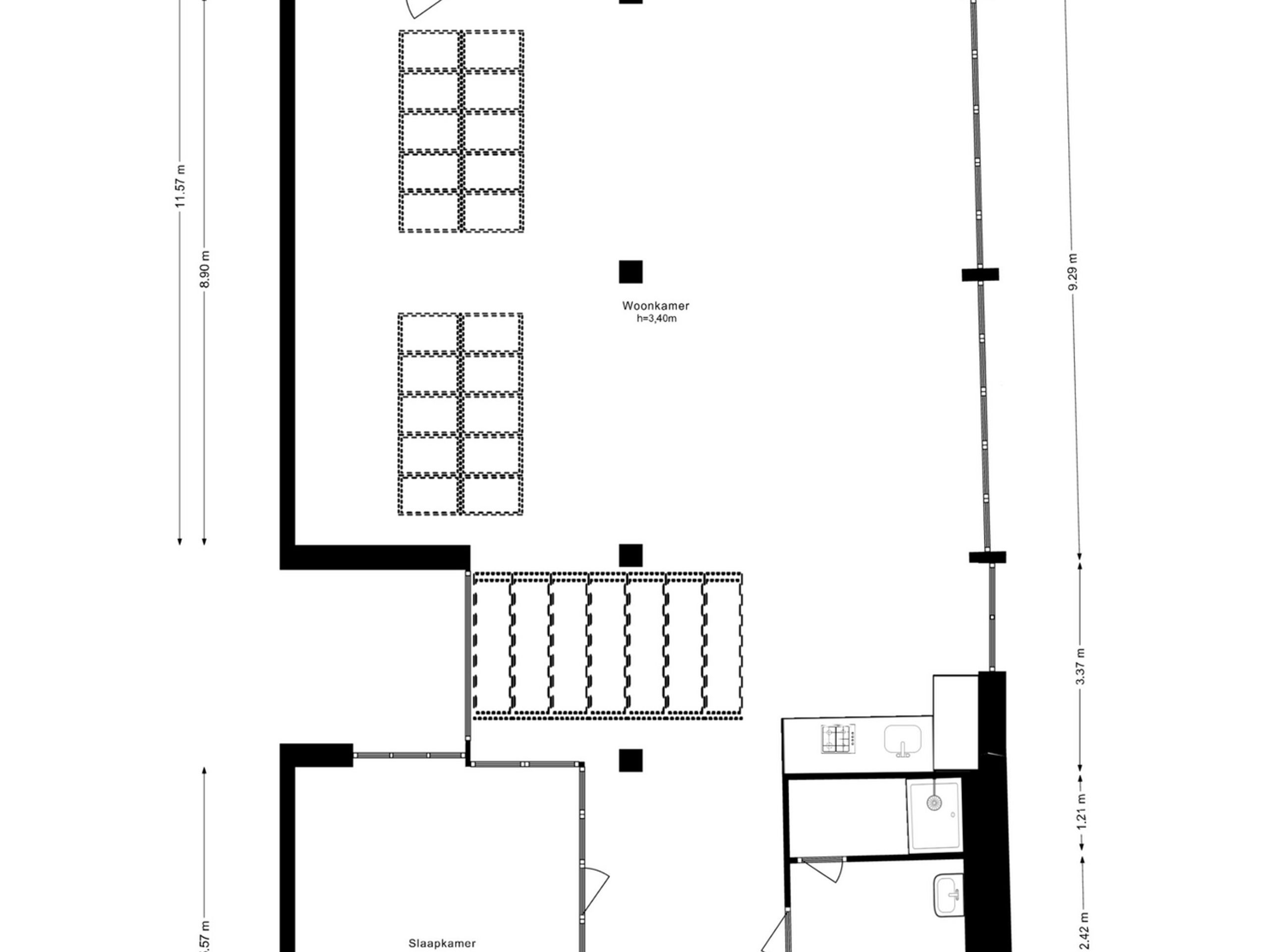
This unique loft of approximately 219 m² is located on the first floor of a stunning monumental building on the iconic Keizersgracht, blending industrial charm with modern comfort. High ceilings with authentic beams, large windows, and impressive skylights flood the space with natural light, while the open layout offers flexibility and endless possibilities. With its dual-purpose destination, this space is perfectly suitable for both living and working.
The monumental building, constructed in 1625, has been carefully preserved, maintaining its historic character. The loft, situated on the first floor, embraces these authentic details, including a meticulously restored ceiling that showcases the original beams and artwork. The space offers an open and adaptable layout that can easily be tailored to various living or working needs. Currently, the loft is used as an office and studio.
Upon entry, you’ll find a bathroom with two toilets on the right, and the first (bed)room on the left. The living area, featuring an open kitchen and spacious sitting area, boasts large windows and big skylights that allow plenty of daylight to flood the room. Towards the rear, there is a second, very spacious (bed)room.
Location: Centrally located in Amsterdam’s historic canal belt, surrounded by grand canal houses and rich history. The Jordaan and the trendy "Nine Streets" district, with their charming boutiques and excellent restaurants, are just a short walk away. The green and cultural Westerpark can be reached by bike in under five minutes. The location is also well connected by public transport and offers easy access to the city's ring roads.
Details: - Living area of 219 m² (in accordance with NEN2580); - Unique loft on the first floor of a monumental building at the Keizersgracht; - Open layout offering numerous possibilities for both living and working (dual-purpose destination / Mixed-1); - Modern open kitchen and two spacious (bed)rooms; - External storage in the basement; - High ceilings with authentic beams, large windows, and impressive skylights; - Located on private land (so no leasehold); - Financially healthy and active Homeowners’ Association (VvE); - VvE service costs are € 150 per month; - Delivery in consultation (quick completion possible).
.jpg)
Would you like to receive more information or schedule a viewing for Keizersgracht 74-A? Peter is ready to assist you.
.jpg)