Professional office. Calm explanation of the sales process. Good preparation with interior advice and beautiful photos for Funda. Clear feedback after viewings. Easy accessibility of the office.
Bart-Jan en Geraldine
Schippersgracht 15
Amsterdam






Asking price
€ 1.095.000 k.k.
Square meters
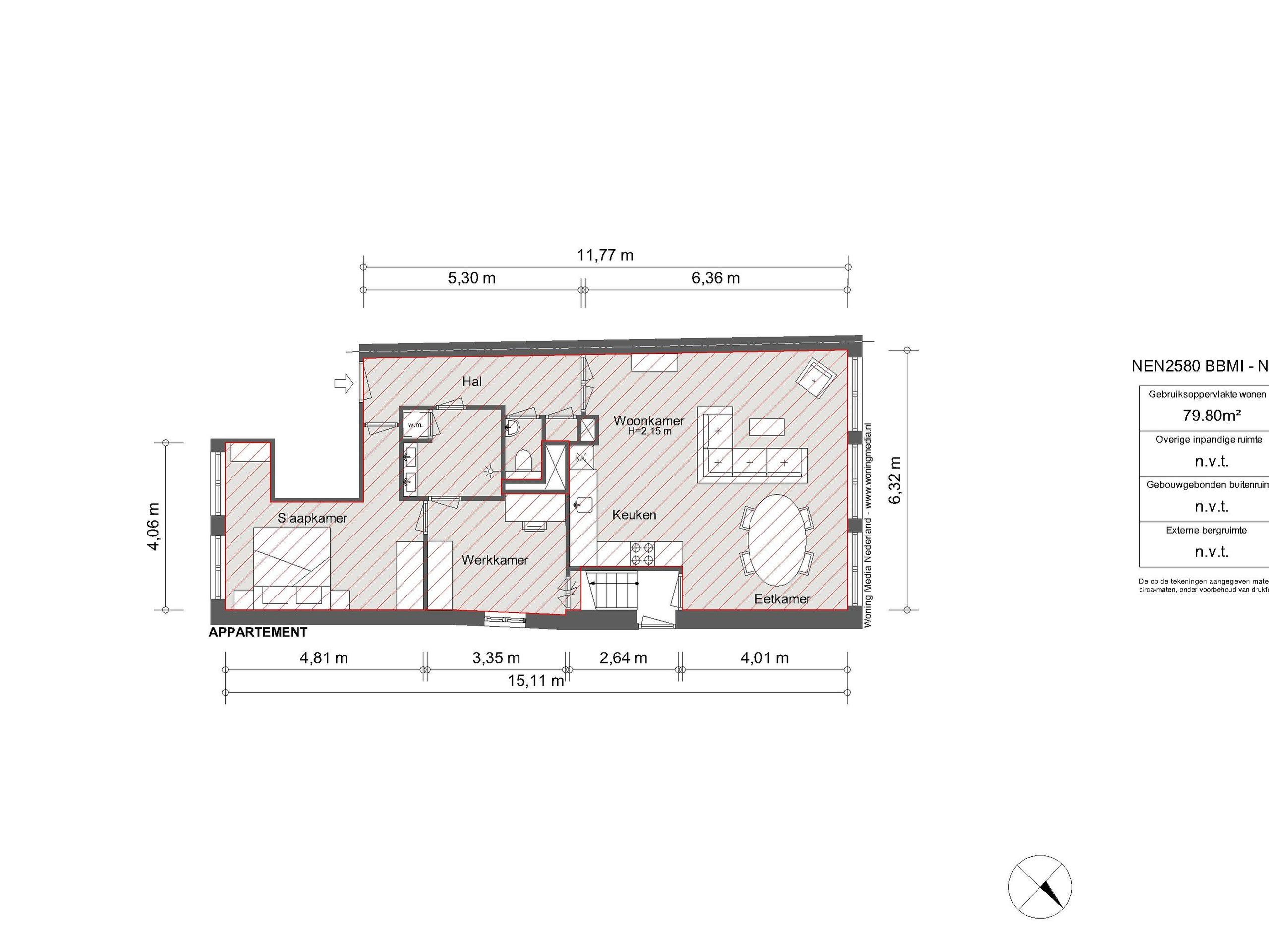
85 m² living
Rooms
3 Rooms / 2 Bedrooms
Charming two-bedroom apartment of approximately 85 m² with a private roof terrace and storage, situated on the fourth floor of an 18th-century canal house dating back to 1745.
This listed national monument seamlessly combines historic character with modern comfort, including a private entrance with lift access and a dual entrance via both the Singel and Spuistraat. Uniquely positioned in the western canal belt, offering unobstructed views over the canal.
Layout: The apartment is located on the fourth floor and can be accessed via lift or staircase. The landing on this floor provides exclusive access to the apartment. At the front is the living and dining area with an open-plan kitchen, enjoying beautiful views over the canal. At the rear is the principal bedroom, alongside a second bedroom and the bathroom. There is also a separate toilet. The south-east facing roof terrace is directly accessible from the hallway and has the required permit in place.
In the basement, there is a private storage unit, also accessible by lift, and equipped with bicycle rails from street level on both the Spuistraat and the Singel. In addition, there is shared use of the communal patio on the ground floor.
Key Features
Location: This exceptional apartment is situated on the Singel, in one of the most sought-after parts of the western canal belt. The setting is both serene and authentic, characterised by stately canal houses and green embankments, while remaining within walking distance of the vibrant city centre. The Jordaan and Haarlemmerstraat are just a few minutes away on foot. Central Station can be reached within less than five minutes by bicycle, and thanks to its convenient location, the A10 ring road is easily accessible via the S100.
.jpg)
Would you like to receive more information or schedule a viewing for Singel 115-K? Lieke is ready to assist you.
.jpg)