Ferdinand Bolstraat 62-2
Amsterdam
28 m² living
1 bedroom
Asking price € 325.000 k.k.
Amsterdam






Asking price
€ 1.680.000 k.k.
Square meters
180 m² living
Rooms
4 Rooms / 3 Bedrooms
A stunning 180 m² duplex apartment that truly lives like a house, offering a rare combination of features: a ground-floor and elevator entrance, impressive unobstructed views over the IJ river, and a sunny 56 m² terrace spacious enough to accommodate three separate seating areas.
The property comprises two bedrooms, two bathrooms, and a generous study with 3-metre-high ceilings, ideal as a home office or professional workspace, and easily convertible into a studio or additional bedroom. There is also the option to purchase a private parking space in the building (subject to negotiation).
Layout: The property offers a well-designed layout with two separate entrances: a private entrance at street level and a second entrance via the communal hallway with lift access to the first floor.
The first floor features a bright, open-plan living area stretching across the full width at the front, with large windows offering beautiful views over the IJ and an abundance of natural light. Electric sunshades provide comfort and privacy. At the centre is a high-end open kitchen with breakfast bar, bespoke cabinetry, induction hob with WAVE extraction hood, Siemens combi-oven and separate oven, and ample storage.
At the rear are two bedrooms, both with direct access to the sunny south-east facing roof terrace of approximately 56 m², offering plenty of space for multiple seating and dining areas. The master bedroom includes an en-suite bathroom. A second bathroom with space for a washer and dryer and a separate toilet are accessible from the hallway.
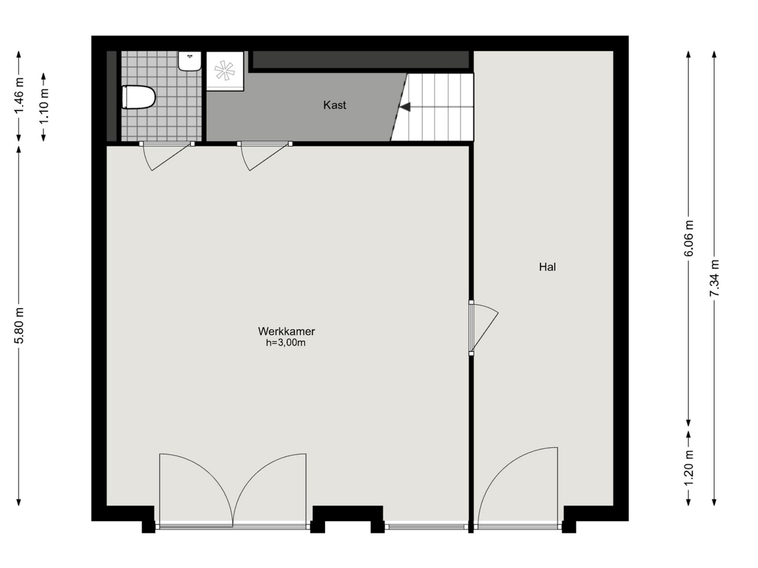
An internal staircase leads to the ground floor, where a spacious multifunctional room with approximately 3-metre-high ceilings and French doors to the outside offers flexibility as a home office, studio or additional bedroom. This level also has a private entrance, a storage room and a separate toilet. Both floors are equipped with underfloor heating and cooling. The first floor is finished with travertine flooring, while the ground floor features smoky grey slate tiles. Additional storage is available in the basement.
Details
Location: Situated in the popular Houthavens district, a modern and water-rich neighbourhood known for its sustainable character and contemporary architecture. As part of the Netherlands’ first climate-neutral residential area, it offers a unique balance of tranquillity and urban convenience. The Jordaan, Westerpark and Haarlemmerbuurt are just moments away, as well as hotspots such as REM-eiland, Vessel and Brasserie George. Amsterdam Central Station can be reached within approximately 10 minutes, with excellent public transport connections and the ferry to Amsterdam North within walking distance. The combination of sustainable living, modern architecture and a prime location on the IJ makes Houthavens one of Amsterdam’s most sought-after residential areas. This property is ideal for those seeking comfort, flexibility and the possibility to combine living and working.
.jpg)
Would you like to receive more information or schedule a viewing for Haparandadam 2-F 1? Lieke is ready to assist you.
.jpg)