Ferdinand Bolstraat 62-2
Amsterdam
28 m² living
1 bedroom
Asking price € 325.000 k.k.
Amsterdam






Asking price
€ 1.650.000 k.k.
Square meters
197 m² living
Rooms
9 Rooms / 5 Bedrooms
Luxury and sustainable townhouse of approximately 197 m², located on the waterfront in the popular and family-friendly Houthavens district. This family home is spread over five floors and offers five bedrooms, two bathrooms, and approximately 76 m² of outdoor space, including a large rooftop terrace with views over the IJ. The property was architect-designed and built in 2015, is fully insulated and features energy label A, underfloor heating and cooling on all floors, a heat recovery ventilation system (WTW) and a video intercom system. The house is also equipped with an alarm and camera system.
From the house there is direct access to the parking garage, where a private parking space with charging station is available.
To fully enjoy the surrounding canals, there is also the optional possibility to purchase an electric steel canal boat, located within walking distance of the property.
Layout
Ground floor
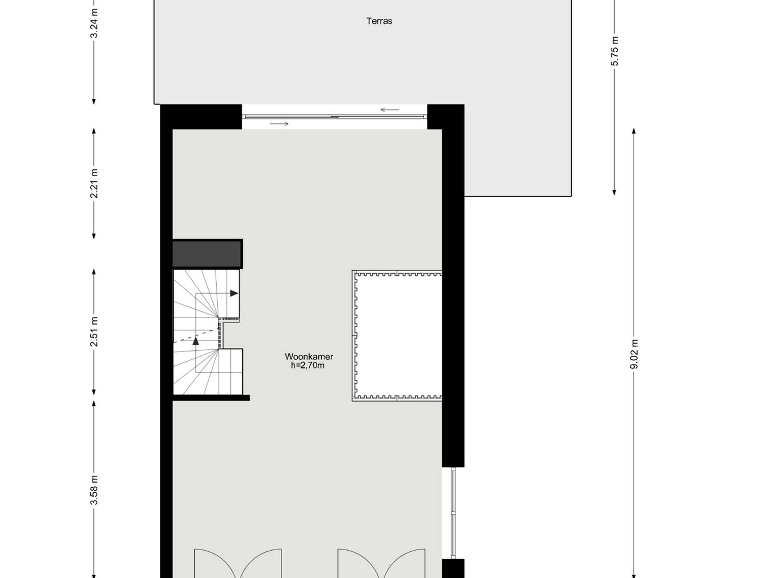
Entrance via the ground floor. The hallway provides access to the dining area with open kitchen. This bright living space is characterized by a ceiling height of approximately 3.20 meters and a large glass façade with folding glass doors that can be fully opened, allowing abundant natural light and creating a seamless connection with the outdoor space. The open kitchen features a kitchen island with composite countertop and high-end Miele built-in appliances, including an induction cooktop, combi oven, coffee machine, dishwasher, refrigerator, freezer and a Quooker tap. At the rear of the property there is a second hallway with a separate toilet, storage space and a spacious internal storage room with a wine climate cabinet and additional freezer. The parking garage is directly accessible from this storage room. The ground floor is finished with a modern poured resin floor.
First floor
An elegant staircase leads to the first floor, where the spacious living room is located. Large windows on both sides provide pleasant natural light throughout the space. In the center of the room there is an open void, creating a visual connection with the floor below. At the front, double French doors open onto the balcony overlooking the canal. At the rear, this floor features a generous terrace of approximately 37 m².
Second floor
The second floor features three bedrooms. Two bedrooms are located next to each other at the front of the house and offer views over the canal. The third bedroom is situated at the rear and overlooks the inner gardens. This floor also includes a bathroom equipped with a shower with glass door, vanity unit and toilet. From the hallway several practical storage spaces are accessible, including the laundry room with connections for a washing machine and dryer. The sleeping floor is finished with solid oak parquet flooring.
Third floor
The third floor offers two spacious rooms. The master bedroom spans the full width of the house and features an adjoining large walk-in wardrobe. The second room is currently used as a home office and also overlooks the inner gardens. Due to the floor-to-ceiling windows, all rooms benefit from beautiful natural light and open views. The second bathroom is centrally located and features a bathtub, walk-in shower, double vanity and toilet. This floor also offers additional storage space and solid oak parquet flooring.
Fourth floor
The top floor consists of a spacious landing where a practical pantry with countertop and refrigerator has been installed. From here, the large and sunny rooftop terrace of approximately 35 m² is accessible, offering beautiful views over the IJ and the Pontsteiger—a wonderful place to enjoy sunny days and long summer evenings.
Details
- Living area of 197 m² (in accordance with NEN2580) - Approximately 76 m² of outdoor space, including balcony, terrace and rooftop terrace - 5 bedrooms, 2 bathrooms and 3 toilets - Balcony on the canal side and a spacious rooftop terrace with views over the IJ and Pontsteiger - Direct access from the house to the parking garage - Private parking space with charging station, available separately for €70,000 - Optional electric steel canal boat available - Alarm and camera system - Energy label A - Located on municipal leasehold land (erfpacht); the current continuous lease period runs until 2064 - Annual ground lease payment (canon) amounts to €7,600 and is tax deductible for the owner - Application to switch to perpetual leasehold under favorable conditions has been submitted in time; the perpetual canon can be fixed at €4,766.95 per year or bought off for €63,167 - Service costs: €150.25 per month for the property and €41.10 per month for the parking space - Delivery in consultation
Location
The Houthavens is a modern and sustainable residential area located on the IJ, a short distance from Amsterdam’s historic city center. The neighborhood is characterized by contemporary architecture, wide canals, abundant water and largely car-free streets, creating a quiet and family-friendly living environment. In the immediate surroundings there are various cafés, restaurants, schools, childcare facilities and sports amenities. The Westerpark, Jordaan and Prinseneiland are all within a short cycling distance. Accessibility is excellent: both by car via the A10 ring road and by public transport towards Amsterdam Central Station and Schiphol Airport.

Would you like to receive more information or schedule a viewing for Houthavenkade 9? Sanne is ready to assist you.
