Kloveniersburgwal 113-C
Amsterdam
60 m² living
1 bedroom
Asking price € 600.000 k.k.
Amsterdam






Asking price
€ 950.000 k.k.
Square meters
121 m² living
Rooms
4 Rooms / 2 Bedrooms
This charming corner apartment, located on freehold land, spans approximately 121 m² and features two bedrooms, a loggia, and a spacious rooftop terrace. Recently modernised with high-quality materials, the property is flooded with natural light thanks to its large windows, enhancing the sense of space throughout. Ideally located in the heart of Amsterdam, directly on the Nes, with every amenity within easy reach.
Despite its central location, the home feels unexpectedly quiet and private. The freestanding top floor and elevated, sheltered position offer a sense of calm and seclusion, right in the heart of the city.
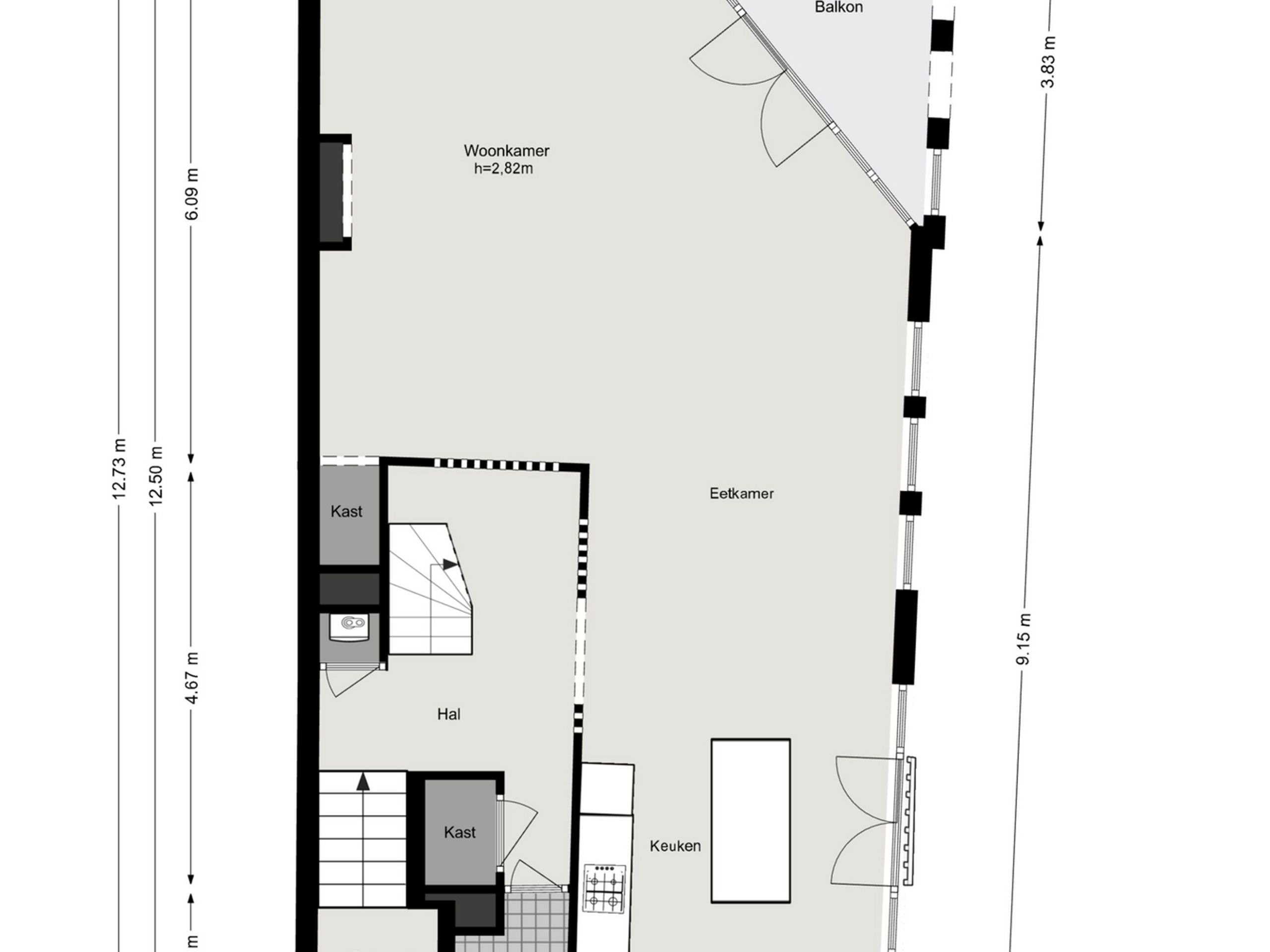
Layout: The apartment occupies the top two floors of the building and offers an impressive width of approximately 10 metres, creating a pleasant sense of space.
The entrance on the third floor opens into a generous hallway that provides access to all rooms, including a separate guest toilet. The living room, open-plan kitchen, and dining area form a stylish, loft-like living space. Thanks to its corner position and wide layout, the home feels spacious and bright, despite its sheltered location in a narrow street.
The open kitchen forms the heart of the home and is ideally positioned for both daily use and entertaining. Adjacent to the living room is a loggia, a sheltered outdoor space that seamlessly extends the interior.
This floor also offers the possibility to create a third bedroom (see alternative floor plan).
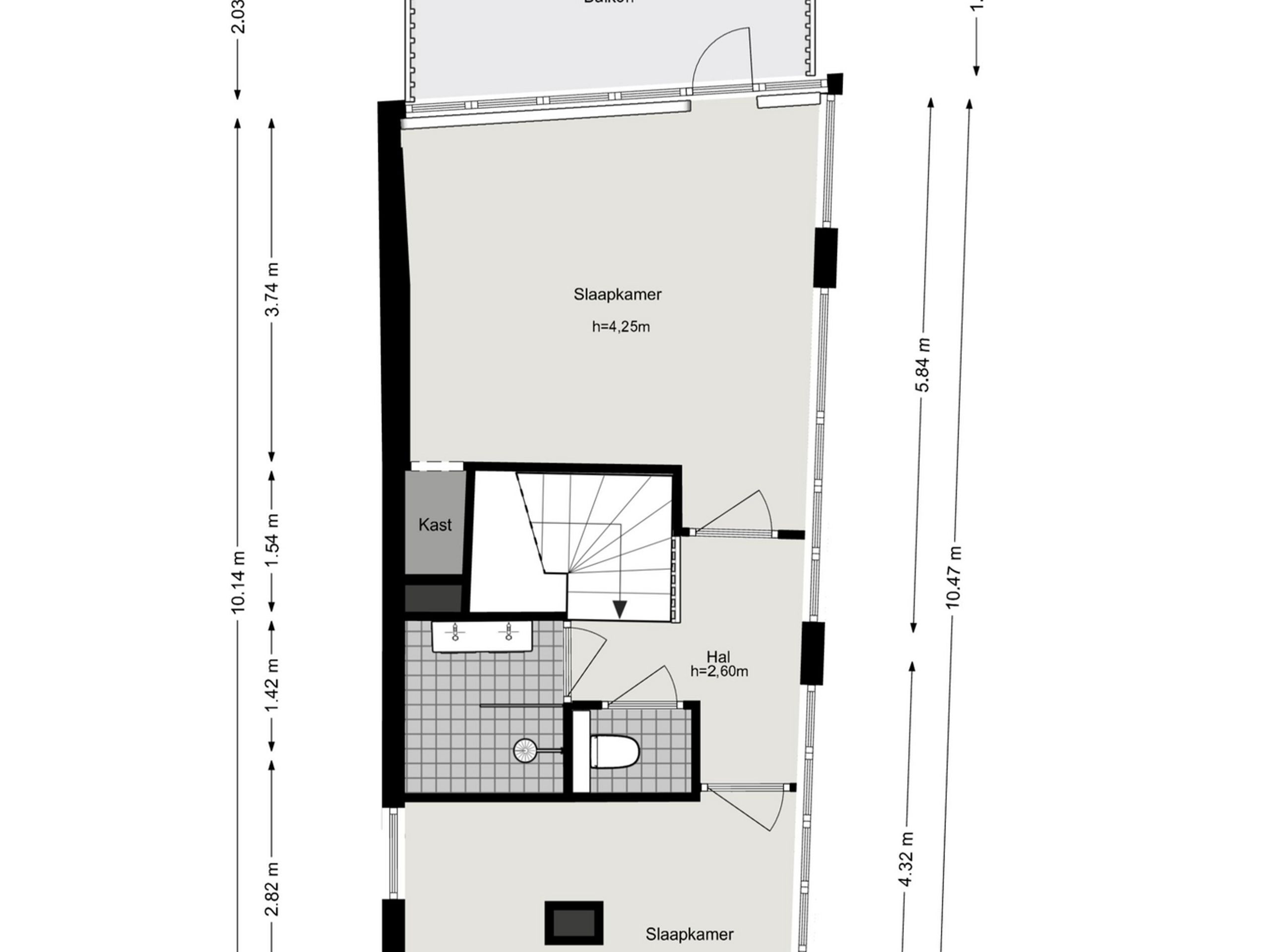
The fourth floor is detached and features two well-proportioned bedrooms and a modern bathroom. The master bedroom stands out with its high ceilings under the distinctive pitched roof and offers direct access to the unique rooftop terrace of approx. 9 m². This is a remarkably quiet spot in the city centre, with views towards Dam Square – a perspective enjoyed by only a select few, aside from the tower beside De Bijenkorf.
Despite its central location, the home feels unexpectedly quiet and private. The freestanding top floor and elevated, sheltered position offer a sense of calm and seclusion, right in the heart of the city.
On the ground floor, the apartment includes a private storage unit and access to a shared bicycle storage.
Details
Location: Pieter Jacobszstraat is located in the historic heart of Amsterdam, just off the atmospheric Nes, a narrow street running parallel to the Rokin, between Dam Square and Grimburgwal. This unique location offers the vibrancy of the city centre combined with surprising tranquillity, right in the middle of Amsterdam’s dynamic core. Within walking distance are the Dam, Kalverstraat, Royal Palace, the Jordaan, the Nine Streets, and Nieuwmarkt. Central Station is just minutes away on foot or via the North-South metro line. Schiphol Airport is also easily accessible. A prime location for those who want the very best of Amsterdam within arm’s reach, while enjoying a calm and comfortable home base.

Would you like to receive more information or schedule a viewing for Pieter Jacobszstraat 8-E? Leanne is ready to assist you.
